 
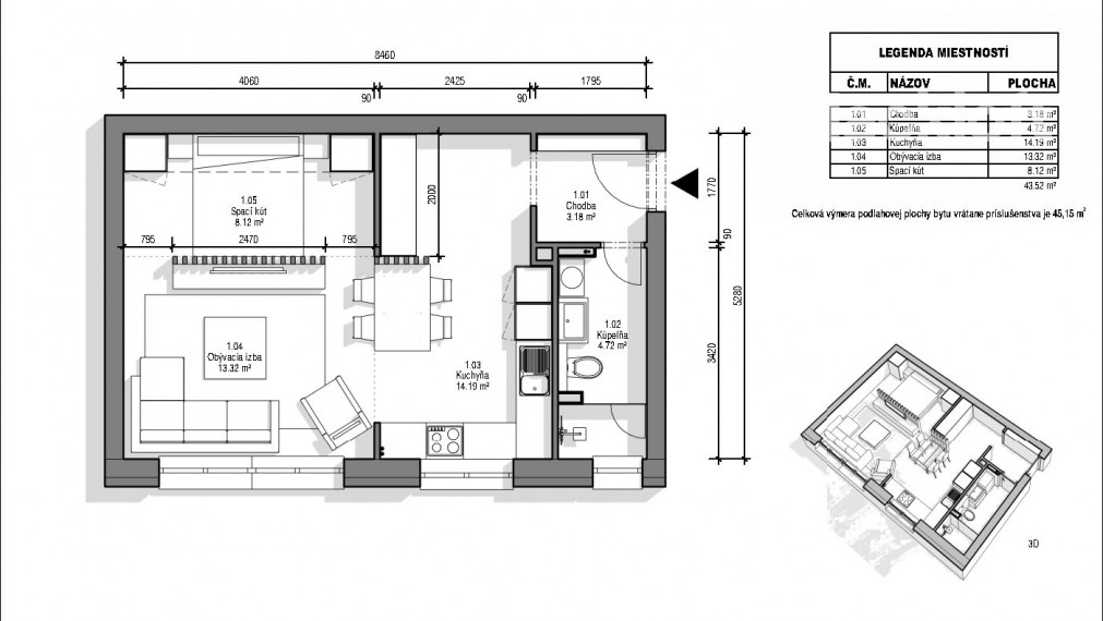
                                                                                                        Ponúkame vám na predaj priestranný trojizbový byt vo vyhľadávanej lokalite. Byt prešiel kompletnou rekonštrukciou a vy budete prvými majiteľmi.
✅ VIDEO Slnečný 3 izbový byt, 68m2, Sklenárova 10, Ružinov
 
                                    | Ulica: | Trenčianska 26 | 
|---|---|
| Mestská časť: | Nivy | 
| Obec: | Bratislava-Ružinov | 
| Okres: | Bratislava II | 
| Kraj: | Bratislavský kraj | 
| Druh: | Byty | 
| Typ: | Predaj | 
| Typ bytu: | 1-izbový byt | 
| Iné: | 
Votre rêve est parfait pour une réalité réelle.
Nous vous présentons un appartement élégant dans un but interrogeable , de manière à ce que vous puissiez vous envoyer une imitation.
L'appartement fait une rénovation complète et vous profiterez des premières propriétés. En raison de la reconstruction, l'appartement est sous le contrôle de nos concepteurs, qui n'ont pas à faire plus de détails. L'appartement dispose de mobilier sur mesure , vous pourrez ainsi profiter d'un maximum de confort.
L'appartement de 1,5 pièce est conçu pour vous et vous souhaitez tous vous réunir pour une vie parfaite. Les chambres lumineuses et les chambres à coucher sont meublées avec style et pratique. L'Appartement a un kopalnica spacieuse avec douche et grand miroir d'une chambre avec un lit king size , d' un élégant salon et d'une kitchenette Pratiquement meublée.
Des tonnes d'équipements créent une atmosphère agraire, conforme au design et au mobilier modernes . Vous pouvez acheter votre nouvel appartement pour trouver un sentiment d'unicité et de perfection.
L'appartement est situé dans une extrémité lucrative de la rue Trenčianská à Bratislava avec des installations civiles parfaites. Faites quelques choses et vous reviendrez dans la rue Miletičova. La nouvelle gare routière de Niva est accessible en 5 minutes et le centre commercial Central est à 2 km. À travers l'appartement, il y a une arrestation des transports en commun, des supermarchés, de la pharmacie, de l'école et d'un jardin d'enfants.
Prenez soin de votre maison et entrez dans votre nouvelle maison.
Portable : 0908 343 662
 
                                            maklér
 
                                                                                                     
                                                                                                     
                                                                                            asdf asd safa sd test